Portekiz’in Alentejo bölgesine bağlı küçük bir kasaba olan Arraiolos’ta bulunan müze, 12. yy’dan kalma bir hastane yapısından dönüştürülmüş. Kasabanın tanınırlığını sağlayan ve Ortaçağ’dan beri üretimi yapılan nakışlı yün halı ve kilimlerin sergilenmesi amacıyla kurulan yapı, kasabanın merkezinde, en önemli meydanında yer alıyor. Bu meydan, kasaba için kamusallık açısından önemli bir yer teşkil ederken,müze bu duruma katkı sağlamakla birlikte kentin tüm sosyal ajandasına yön vermeyi amaçlıyor. Projenin mimarları, dönüştürme işleminin tarihi yapıyıcanlandırmasının yanında,kasabanın sosyal ve kültürel yaşamına da yenilik getireceğine inanıyorlar.
Projeyi gerçekleştiren CVDB Arquitectos, 1999 yılında kurulmuş ve Lizbon’da bulunuyor. Ofisin ortakları Cristina Veríssimove Diogo Burnay bir yandan da “Faculdade de Arquitectura UTL”de öğretim görevliliği yapıyorlar. Daha önceleri, Lizbon’da João Luis Carrilho da Graça ve Londra’da Zaha Hadid ile profesyonel deneyimleri ve başka okullarda da öğretim tecrübeleri mevcut. Ofis kentsel tasarımdan yeni yapı tasarımına; restorasyon ve iç mekan tasarımından geçici strüktürlere kadar her ölçekte proje tipiyle ilgileniyor. Gerçekleştirdikleri projeler arasında okul, ev, müze, kütüphane ve kültür merkezi gibi çeşitli yapılar bulunuyor. Genel olarak işlerinde betonu yoğun bir biçimde kullanıyor ve fazla parçalanmamış, yekpare yüzeyler yaratıyorlar. Birkaç istisna proje dışında genel tasarım anlayışlarını yalın olarak nitelendirmek ve kütle hareketlerinin ince düşünülmüş ve naif olduğunu söylemek mümkün.
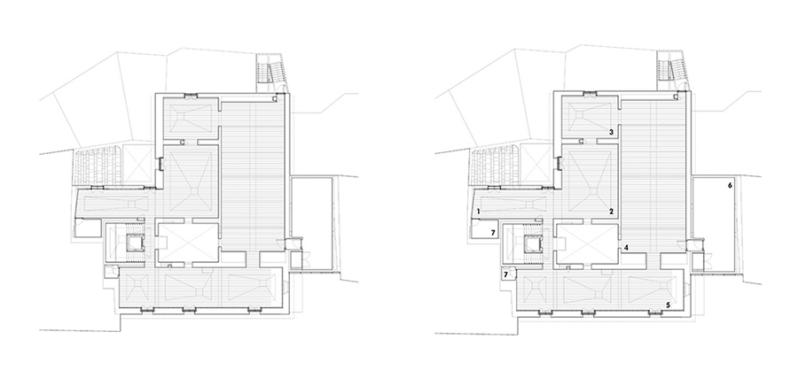
Yapı, tarihi boyunca gerçekleştirilen tüm müdahalelerden izler taşıyor. Yenileme sürecinde, daha önce gerçekleştirilmiş dönüşüm / değişimlerden bir kısmının korunması tercih edilmiş. Yapılan müdahalelerin yanında, mevcut doku da ortaya çıkarılmaya çalışılarak, korunan tarihi bölümler ve yenilenen kısımların, çağdaş bir dil çerçevesinde bir araya getirilmesi ana tasarım kararını oluşturuyor.
Yapının bulunduğu bölgede genel olarak eski ve az katlı bir yapılaşma var. Dönüşüm sırasında dış cephe onarılmış ve çevresindeki çoğu yapı gibi beyaz ve mavi renklerde yeniden boyanmış. Onarım dışında cephesine fazla müdahalede bulunulmaması ve korunmuş olması nedeniyle, yapı mevcut dokuya uyum sağlıyor ve sürekliliği bozmuyor. Dış cephede yapılan tek müdahale, halı ve kilimlerin daha rahat taşınması amacıyla arka tarafa eklenen merdiven kovası. Merdiven, şeffaf ve geçirgen oluşunun yanında rengiyle de yere yabancı kalmıyor ve adeta dokuyla bütünleşiyor. Malzemesi ve biçimi itibarıyla ise, yapının modern bir görünüm kazanmasına yardımcı oluyor. Böylelikle, dönüşüm sürecinde iç mekanda tasarım prensibi olarak ele alınan, tarihi ve modern olanı bir araya getirme anlayışı, burada da sürdürülmüş oluyor.
İki katlı ve merkezi dağılım sistemine sahip yapının ana aksında bir atrium bulunuyor. Girişten hemen sonra ulaşılabilen bu bölüm, müzenin “öz”ü olarak tanımlanıyor. Düğüm noktası niteliğindeki bölümden,diğer tüm kısımlaradağılım sağlanıyor. Etrafındaki açıklıklar sayesinde, atriumun çevresi gözlemlenebiliyor ve bu durum öz ile çevresi arasındaki görsel bağlantıya bir çeşitlilik katıyor. İki kat yüksekliğinde devam eden ve tonozlasonlanan atriumun bir ucunda merdiven bulunuyor ve böylelikle üst katla bağlantı da özden sağlanıyor. Merdivendeki yan duvarlara ve merdiven kovasına saplanan basamakların rıhtsız oluşu, kullanılan mermer malzemenin yarattığı ağırlık hissini biraz hafifletiyor. Üst kata ulaştıklarında ise ziyaretçileri serge salonlarından once bir balkon bekliyor. Balkonun ucundaki seyir noktası tüm mekanı deneyimleme şansı sunarken, zemin katta erişilen görsel deneyim, burada kare biçimindeki açıklıklardan devam ederek tüm üst katı da kapsıyor.
Zemin katta 18. yy.’da eklenen tonoz tavanlar korunmuş ve beyaza boyanarak dekoratif baskıları ön plana çıkarılmış. Bu katta sadece çok amaçlı salonda tavan modern mimari dile göre yenilenirken bu esnada çelik kirişlerle kuvvetlendirilmiş. Birinci katta, zemin kata oranla daha kapsamlı müdahaleler yapılmış. Tavanlar bir oda dışında tümüyle yenilenirken,daha iyi ışık alabilmek amacıyla tüm çatı üstüne, ters baca / havalandırma şeklinde ışıklıklar eklenmiş. Büyük sergi salonu ise yapılan ahşap çatı uygulaması ile neredeyse bir sanayi yapısını andırıyor. Bu katta bir de kasabanın ve avlunun deneyimlenebileceği teras bulunuyor.
Yerel malzeme kullanımına özen gösterilen yapıda baskın karakter mermerken, ahşap da diğer ana malzeme olarak zeminde sıkça kullanılmış. Mimarlar, yapının saygın ve soylu olduğunu ve seçilen mermerin de bu durumu yansıtacağını düşünerek malzeme tercihlerini bu yönde yapmışlar. Seçilen damarlı mermer gri ve beyaz renkleri içeriyor. Atriumun zemininde ve zemin katın diğer mekanlarında devam ederken, zaman zaman duvarlara da tırmanıyor. Aynı mermer malzemeden yapılmış süpürgelikler de bir hayli yüksek tutulmuş. Kimi yerde bank ve banko gibi mobilyaların da aynı mermerden oluşması, malzeme ve görsellik açısından bir süreklilik sağlıyor. Böylelikle, triumun bağlantı noktası oluşu sebebiyle, hacimsel ve görsel anlamda sağlanan süreklilik malzeme açısından da devam ediyor. Bu noktadan üst kata çıkan merdiven yine aynı malzemeden yapılmış veüst katta büyük sergi odalarına geçerken yerini ahşaba bırakıyor. Zeminde kullanılan ahşap, doğal sarı ve pembemsi renk tonlarını sergilemek amacıyla boyanmadan bırakılmış. Duvarlarda hakim olan beyaz renk ise mermerin içindeki beyazile ilişkilendirilerek renk devamlılığı sağlamış. Böylelikle, tavan, duvarlar ve mermerin rengi birleştiğinde, aydınlık hacimler meydana geliyor. Bununla birlikte, mermerin içindeki gri, yapının ana giriş kısmında beyaz renge oranla daha fazla karışmış ve daha baskın olarak hissediliyor. Girişten arkaya doğru uzanan hafif eğim ve tavanın tonoz oluşu sebebiyle de kat yüksekliğinin daha az algılandığını söylemek mümkün. Bu iki durum beraberindegün ışığının da daha az oluşu bir nevi baskınlık hissiuyandırıyor. Bununla birlikte yapının genelinde, işlevi gereği gün ışığına göre yerinde müdahaleler yapıldığını söylemek mümkün. İç mekanda kullanılan tüm aydınlatma elemanları ise tasarımın geneline uygun biçimde çok sade tercih edilmiş.
Dönüşümün ardından yapı, özellikle sade kurgusu, renk ve malzeme seçimleriyle hastaneye ait soğukluğu sürdürürken, bir yandan da ibadet mekanını andırıyor. Özellikle atrium ve üst kattaki balkon ilişkisi bir nevi toplanma alanı hissi uyandırıyor. Yapının genelinde oluşturulan dinginlik duygusu ve ortama hakim olan süreklilik, yapıyı mistik bir mekan haline getiriyor.
Aslı Uzunkaya Mimar













