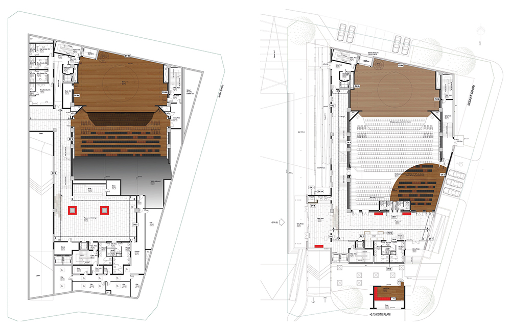
Bakırköy Osmaniye’de bitişiğindeki park alanı ile bütünleştirilerek tasarlanan yapı tiyatro ve konser konferans işlevleri ile küçük kadrolu operalara hizmet verebilecek bir teknik donanıma sahip. Yapının bitişiğindeki yaya yolu ve komşu park alanı yapı parseli ile birleştirilmiş, böylece kentsel dokuda insanların sosyalleşebilmesi için elzem olan bir meydan/alan yaratılmış. Yapı, meydan cephesindeki açık yürüyüş rampaları ile meydandaki hareketliliği üçüncü boyuta taşıma ve bağlantılı olduğu katlardan da meydana ulaşma olanağı sağlıyor. Meydanda gerçekleşecek faaliyetleri buradan izlenebilir veya kendi bir gösteri platformuna dönüşebiliyor. Batı cephesi üzerindeki büyük ekran, sahnede gerçekleşen faaliyetleri anında yansıtma olanağına sahip. Böylece sanat kapalı kapılar ardında kalmaktan kurtulmuş, halka gerçek anlamda açılmış oluyor. Ayrıca bedelini ödeyemeyen, herhangi bir nedenle bu kültüre uzak kalmış olan yabancılaşmamış/dışlamamış olacak. Son olarak metal dikmeli rampa, hemen onun arkasındaki taş yüzey, iç fuaye duvarı üzerinde güneşin zaman içindeki hareketi ve altındaki havuzun yansımaları ile oluşan, sürekli bir ışık gölge dansı/oyunu yaratmayı amaçlıyor. Balkonu ile birlikte dokuz yüz on kişi kapasiteli salonda sahne girişin bir alt katında yer almakta ve salon bağlantısı olan her üç katta bulunan fuayeler aynı zamanda sergi salonu işlevi görüyor. Salonun üzerindeki çatı katında çocuk kulübü, hobi atölyeleri ve küçük bir kafe bulunuyor. Burası kreş olarak hizmet etme dışında, akşam saatleri etkinliğini izlemek isteyen ailelerin küçük çocuklarına ev sahipliği yapacak. Yönetimle ilgili ofislerin birinci bodrum katta bulunduğu yapıda, birinci ve ikinci bodrum katta sanatçı duş ve soyunma alanları, ikinci ve üçüncü bodrum katta otopark yer alıyor.
KENDISI BAŞLI BAŞINA SAHNE OLAN BIR YAPI: LEYLA GENCER OPERA VE SANAT MERKEZI
“İSTANBUL’UN RESMI YAPILARININ ÇOĞUNDA KULLANILAN DOĞAL TAŞ, UZUN ÖMÜRLÜ BİR MALZEME VE GELENEĞE UYMAK ADINA LEYLA GENCER OPERA VE SANAT MERKEZI’NDE TRAVERTEN KULLANDIK…”
Günümüzde çoğu olgu gibi mimarlık da, ürünler ve hatta bu ürünlerin görselleri üzerinden değerlendiriliyor. Sosyal medya sayesinde yükselişe geçen bu algılama/değerlendirme biçimi, insanlık tarihinin henüz adı konmamış döneminin belirtilerinden biri olsa gerek… Bu geçiş dönemine kolay uyum sağlayamayan bir mimar olarak, yapıların var olma süreçlerinin ve sunduğu deneyimlerin değerlendirilme dışı kalmasına içim elvermiyor. İşte tam da bu yüzden Leyla Gencer Opera ve Sanat Merkezi’ni anlamak için, projenin mimarı Cemal Mutlu ile görüştüm. Bakırköy Belediyesi, 2011 yılında yeni bir sanat merkezi için davetli bir yarışma düzenledi; katılımcılar belediyenin ekipleri tarafından belirlendi ve yapıyı tasarlaması için Optimus Mimarlık seçildi. Mutlu, projenin yerine uyum sağlamasının tasarım konseptinin önemli bir parçası olduğunu söylüyor ve projenin her köşesini, hatta peyzajının bile bütünlülüğü sağlaması için kendisinin, özellikle sert yapıda, katkı sağladığını ekliyor.
Mevcut park alanı ve önünden geçen yaya yolu ile yapının ilişkisi düşünülmüş; yaya yolu kaldırılarak bir meydan oluşturulmuş. Binanın kendisinin bir sahne haline geldiği projenin amacı performans sanatlarına karşı çekingenlik besleyen kişilerin ilgisini çekebilmekmiş. İnsanların toplanacağı açık bir alana dönüşen meydan ve parkın düzenlemesi projenin önemli unsurlarının başını çekiyor. Yapının önünde yer alan rampa aslında bir açık hava sahnesi gibi çalışıyor ve basamaklar amfiye dönüşüyor. Proje arsasında çekme mesafeleri haricinde kalan alanın tamamı kullanılmış. Akustik performans açısından konser salonu için ahşap birim ve bunun etrafındaki sirkülasyonu ve diğer hacimleri içine alan doğal taş birim tasarlanarak iç içe geçmiş iki kutu tasarlanmış. 2012 yılında temeli atılan projenin ihtiyaç programı mimar tarafından hazırlanmış; yapı yaklaşık 900 kişiye hizmet veren çok amaçlı salon, kulis, kapalı otopark, marangozhane, depolar, yönetim birimleri, servis alanları, ofisler, çocuk yuvası ve kafe işlevlerini kapsıyor. Cemal Mutlu konga çalıyor, hi-fi ve müzikle olan ilişkisinin projeye katkılar sunduğunu söylüyor. İşveren tarafından çok amaçlı olması istenen salonun elektronik ve doğal akustiği önemli bir konuymuş. Her işlevin akustik tasarımı açısından ayrı bir hesabı olduğuna dikkat çeken Mutlu, salonun iklimlendirmesinin ses açısından çok önemli olduğunu belirtiyor. İsmini “La Diva Turca”, namı diğer Leyla Gencer’den alan yapıda devlet sanatçısı için hazırlanmış bir müze de bulunuyor; 2010 yılından bu yana İKSV’nin Şişhane’deki binasında bulunan ve divanın Milano’daki yaşamından izler taşıyan Leyla Gencer Evi yapıya taşınıyor ve kısa bir süre içinde açılacağı alınan duyumlar arasında. Yapının en dikkat çekici öğelerinden biri de Bihrat Mavitan ve Ümit Öztürk’ün imzalarını taşıyan Leyla Gencer heykeli… Yapıda doğal taş, çelik, cam ve ahşap malzemeler kullanılmış. Malzeme seçimde Cemal Mutlu, İstanbul’un resmi yapılarının çoğunda kullanılan doğal taş, uzun ömürlübir malzeme ve geleneğe uymak adına Leyla Gencer Opera ve Sanat Merkezi’nde traverten kullandığını söylüyor. Kumlandığında içindeki boşlukları bir görsel şölene dönüşen travertenin seçiminde dokusu etkili olmuş… Mutlu yapının hizmete girdiği andan itibaren sahipleri tarafından hızla değiştirildiğini gözlemlediğini ve bunun tasarlanan bütün kültür yapıları için de geçerli mi olduğunu merak ettiğini söylüyor…
Leyla Gencer heykeli, Bihrat Mavitan ve Ümit Öztürk
DOĞAL TAŞ: TRAVERTEN OCAK: AFYON
KÜNYE
Proje Yeri: Osmaniye Mahallesi, Bakırköy, İstanbul
Mimarlık Ofisi: Optimus Mimarlık Tasarım Danışmanlık ve Mozaik
Tasarım Ekibi: Cemal Mutlu ve Türkiz Özbursalı
Proje Ekibi: Ferhat Sürek, Ecem Kocaarslan ve Ali Derya Mutlu
Statik Proje: C Yapı
Elektrik Projesi: Sanayi Mühendislik
Mekanik Proje: AKS Proje Yapı Denetim Grubu
İşveren: Bakırköy Belediyesi
Ana Yüklenici: Muzaffer Oflazt
Aydınlatma Projesi: Elekon Aydınlatma
Akustik Projesi: PRO Sistem ve Optimus Mimarlık
Tesisat Projesi: AKS Proje Yapı Denetim Grubu
İç Mekân Tasarımı: Optimus Mimarlık Tasarım Danışmanlık
Peyzaj Projesi: Optimus Mimarlık Tasarım Danışmanlık
Danışman: Cemal Mutlu
Proje Tarihi: 2011 – 2012
Yapım Tarihi: 2012 – 2014
Arsa Alanı: 6.843 m²
Toplam İnşaat Alanı: 12.000 m²
Fotoğraflar: Mahmut Ceylan – 2014
Selin Biçer Mimar



















